
Marie-Pier Bergeron
FBL est un cabinet comptable en voie de devenir un important leader en matière de comptabilité au Québec. L’aménagement de ses bureaux met en valeur la vigueur de la nouvelle génération de comptables en mettant à l'avant le contraste entre la rigueur et le dynamisme de la comptabilité et de la fiscalité.
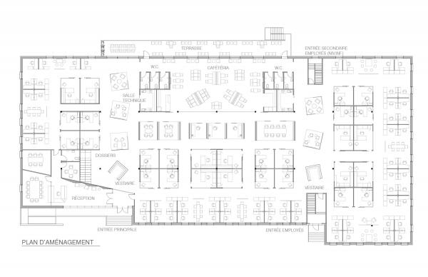
Le client est d’abord accueilli dans un espace qui reflète l’expertise de l’entreprise. Le contraste est exprimé progressivement dans les espaces de travail vers les espaces informels par la déformation d’un cube dans sa forme la plus simple en brisant sa rigidité jusqu’à l’obtention d’arêtes désorganisées.
C’est un lieu ergonomique qui favorise le partage des connaissances par la planification des bureaux selon les liens formés par les équipes de travail. L’environnement permet à l’employé d’effectuer son travail à divers endroits entre le bureau formel, les espaces de collaboration, les salles de réunion et les zones caucus, en interagissant de diverses façons avec ses collègues.


















